成田プリンスハイツ

2,780万円

千葉県富里市日吉倉

京成本線「京成成田」駅徒歩14分

成田線「成田」駅徒歩15分

京成本線「公津の杜」駅徒歩51分

価格
2,780万円
間取り/面積
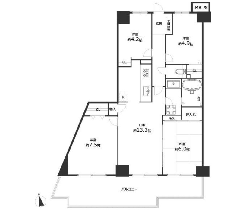
4LDK/74.91㎡
所在地
千葉県富里市日吉倉
築年
1993年3月(築33年)
駐車
空有
交通

京成本線京成成田」駅 徒歩14分

成田線成田」駅 徒歩15分

京成本線公津の杜」駅 徒歩51分車12分 4.0km

成田プリンスハイツの基本情報

物件名
成田プリンスハイツ
価格
2,780万円
築年月
1993年3月(築33年)
総戸数
153戸
所在地
千葉県富里市日吉倉
交通

京成本線京成成田」駅 徒歩14分

成田線成田」駅 徒歩15分

京成本線公津の杜」駅 徒歩51分車12分 4.0km

成田プリンスハイツの詳細情報

設備条件
設備(その他)
    -
駐車場/月額
空有/ ※空き要確認
土地権利
所有権
国土法届出
不要
用途地域
準住居
戸数
153戸 / -
管理形態
管理会社に全部委託
管理員の勤務形態
日勤
管理会社
長谷工コミュニティ
取引態様
仲介
引渡し
相談
備考
徒歩22分の場所に富里市立日吉台小学校があります。地上11階建てなので、開放感もあります。駅まで歩いて行くことのできる、駅徒歩14分の物件です。この物件は快適な室内環境が魅力の中古マンションとなっています。普段から京成本線京成成田のご利用が欠かせない方に適した物件をご紹介します。こだわりの条件やご要望などがあれば、ぜひ当社にお聞かせ下さい。メール、又はお電話にてご連絡をお待ちしております。

成田プリンスハイツのコメント(おすすめポイント)

こちらの物件は富里市立日吉台小学校まで1711m以内にあるのがポイントです。駅から徒歩14分の物件はいかがですか。11階建てのオススメの建物がコチラです。綺麗に整備された中古マンションで清潔感を感じます。不動産情報を豊富に取り扱っている当社は、お客様が希望される条件に適した物件のご紹介を致します。当社へはメールまたはお電話にてお問い合わせ下さい。

成田プリンスハイツで募集中の物件

  1. 3階

    22.66坪 (74.91㎡)

    2,780万円(122.68万円/坪)

周辺施設

  • セブンイレブン 富里日吉倉店の画像

    コンビニエンスストア

    セブンイレブン 富里日吉倉店

    431m(6分)

  • イオンタウン成田富里の画像

    スーパー

    イオンタウン成田富里

    669m(9分)

  • ヤオコー 成田駅前店の画像

    スーパー

    ヤオコー 成田駅前店

    1122m(15分)

  • 京成成田駅の画像

    京成成田駅

    1153m(15分)

  • JR成田駅の画像

    JR成田駅

    1233m(16分)

  • 富里市立日吉台小学校の画像

    小学校

    富里市立日吉台小学校

    1711m(22分)

  • スーパータイヨー 成田店の画像

    スーパー

    スーパータイヨー 成田店

    2532m(32分)

  • 富里市立富里北中学校の画像

    中学校

    富里市立富里北中学校

    2640m(33分)

  • イオンモール成田の画像

    ショッピングセンター

    イオンモール成田

    3229m(41分)

  • 公津の杜駅の画像

    公津の杜駅

    4238m(53分)

近隣の物件

  1. 富里市日吉台4丁目

    4LDK (86.02㎡)

    640万円

よく見られている物件

  1. 富里市日吉台4丁目

    4LDK (86.02㎡)

    640万円

  2. 八街市八街ほ

    3DK (57.73㎡)

    850万円

  3. 成田市大袋

    2LDK (60.00㎡)

    1,090万円

  4. 八街市八街

    3DK (53.73㎡)

    680万円

成田プリンスハイツ

お気軽にお問い合わせください

無料お問い合わせ

ハウスコミット富里(株式会社メニーガ)

0476-36-4703

9:30~18:00

(休:火曜日・水曜日)